Wir sind ein traditionsreiches Unternehmen, das sich auf die Produktion von hochwertigen Tanks und Behältern spezialisiert hat.

Bierabfüllung mit Edelstahl-Bierdrive-Tanks.

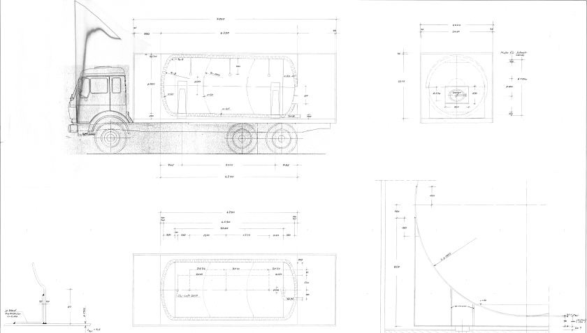
Unsere Bierdrive-Tanks werden nach den spezifischen Anforderungen der Brauindustrie gefertigt, um eine effiziente und hygienische Lagerung von Bier während des Abfüllprozesses zu gewährleisten. Die Verwendung von hochwertigem Edelstahl als Baumaterial garantiert eine hohe Beständigkeit gegenüber Korrosion und gewährleistet die Reinheit des Biers, da keine Kunststoffe oder andere Materialien mit dem Getränk in Kontakt kommen.

Unsere maßgeschneiderten Bierdrive-Tanks ermöglichen eine effiziente und hygienische Lagerung und Abfüllung von Bier in Brauereien und Getränkeabfüllanlagen.

Unsere Bierdrive-Tanks finden Anwendung in Brauereien und Getränkeabfüllanlagen, wo sie eine zentrale Rolle für eine zuverlässige und kontrollierte Abfüllung von Bier spielen. Unsere Edelstahl-Bierdrive-Tanks zeichnen sich durch ihre präzise Verarbeitung und ihre langlebige Konstruktion aus, was eine optimale Lagerung und Abfüllung von Bier ermöglicht.